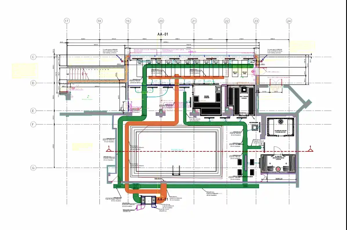
Project Description
Project Type – Indoor Swimming Pool – Skimmer Type
Pool Size – 9m x 4m x 1.2m~1.8m (variable depth)
Location – Bengrave – Sheffield UK
Dosing System – Drinking Quality Water
Project Brief – Design and build of stunning indoor swimming pool project. We built the Sheffield pool project from scratch, ensuring a high-quality and durable design. In addition to the pool, we installed a luxurious sauna and steam room, creating a complete relaxation and wellness experience. Our expertise and attention to detail brought this project to life, combining functionality with elegant aesthetics. Have a look below for more details


2D/3D Plan






















