WANSTEAD London swimming Pool Project
A Complete Design & Build of Backyard Indoor Swimming Pool – Drinking Quality Water System
Project Description
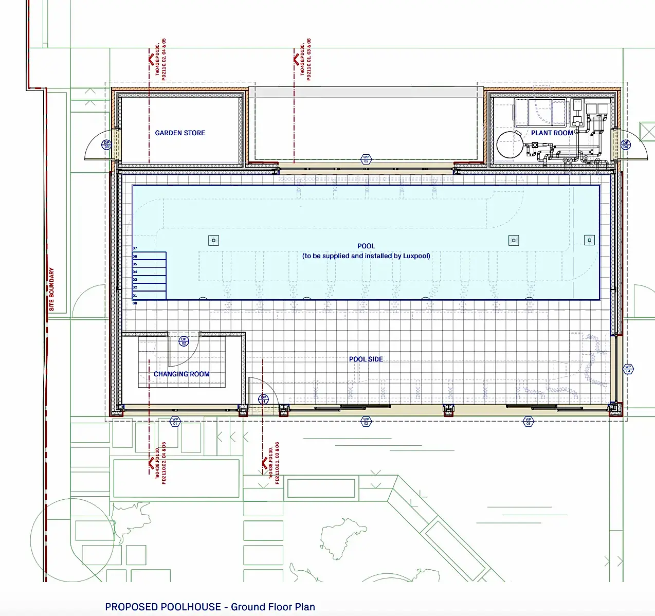
Project Type – Indoor Swimming Pool – Skimmer Type
Pool Size – 15m x 4m x 1.2m
Location – WANSTEAD London
Dosing System – Drinking Quality Water
Project Brief – Design and build of stunning swimming pool project, transforming a backyard into a luxurious retreat. Sleek pool features, modern finishes and high-quality materials for a flawless aesthetic. To enhance the experience, we incorporated double glass screen to front parameter of enclosures, ensuring a clean and cozy atmosphere. The project also includes hybrid sauna, vital steam room, and experience shower for the ultimate relaxation. Effective AHU to have fresh and warm air circulation to Pool room.


2D/3D Plan




























