LIverpool swimming pool project
A Complete Design & Build of Beachside Indoor Pool & Wellness
Project Description
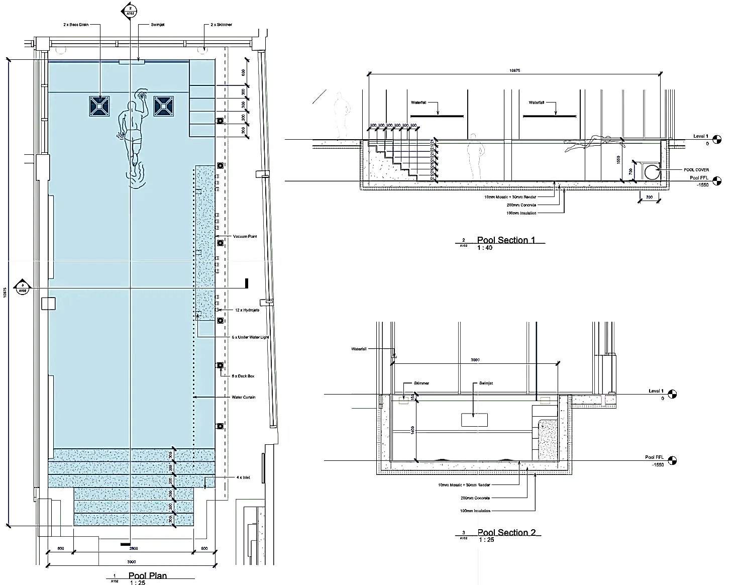
Project Type – Indoor Beach Side Swimming Pool – Vitality
Pool Size – 10.5m x 3.5m x 1.2m~1.8m (variable depth)
Location – Liverpool, UK
Dosing System – Drinking Quality Water
Project Brief – Design and build a stunning indoor beachside swimming pool project. We built the Liverpool pool project from scratch, ensuring a high-quality and durable isometric / hydraulic design. In addition to the pool, we installed a luxurious sauna and hybrid steam room, creating a complete relaxation and wellness experience with heat infrared and himalayan salt. Our expertise and attention to detail brought this project to life, combining functionality with elegant aesthetics. Have a look below for more in details


2D/3D Plan















